The Icheon House
Korea, Gyeonggi Province, Icheon
2012
This design reinterprets traditional Korean architecture through a contemporary lens. Rather than directly replicating historical forms, the design abstracts key ideas—such as spatial flow, layered thresholds, and the relationship between inside and outside—into a modern composition of volumes and materials.
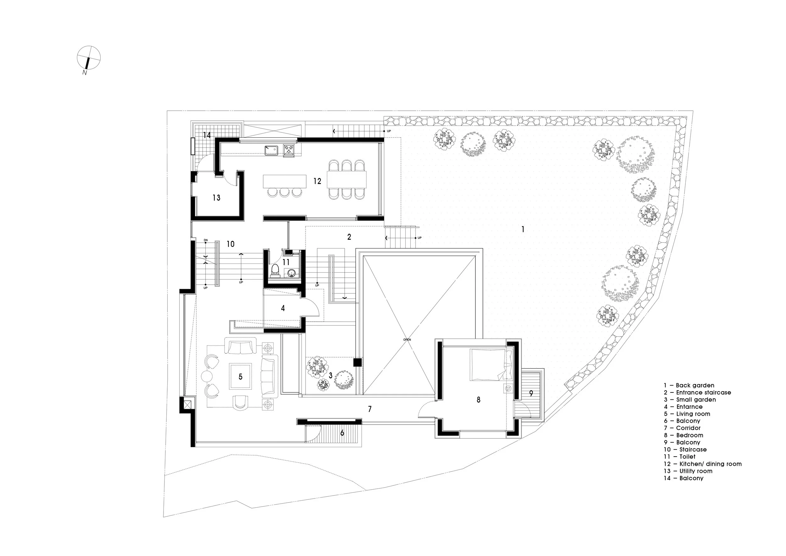
The courtyard serves as the central element that connects the various spaces along the paths of human movement, encouraging fluid circulation and visual continuity throughout the building.
Inside, subtle level differences create a rich sequence of spatial experiences, allowing users to perceive and engage with each area in diverse and dynamic ways. These shifts in floor height create natural zoning without rigid separation, offering varying perspectives, degrees of privacy, and atmospheres within the same continuous environment.