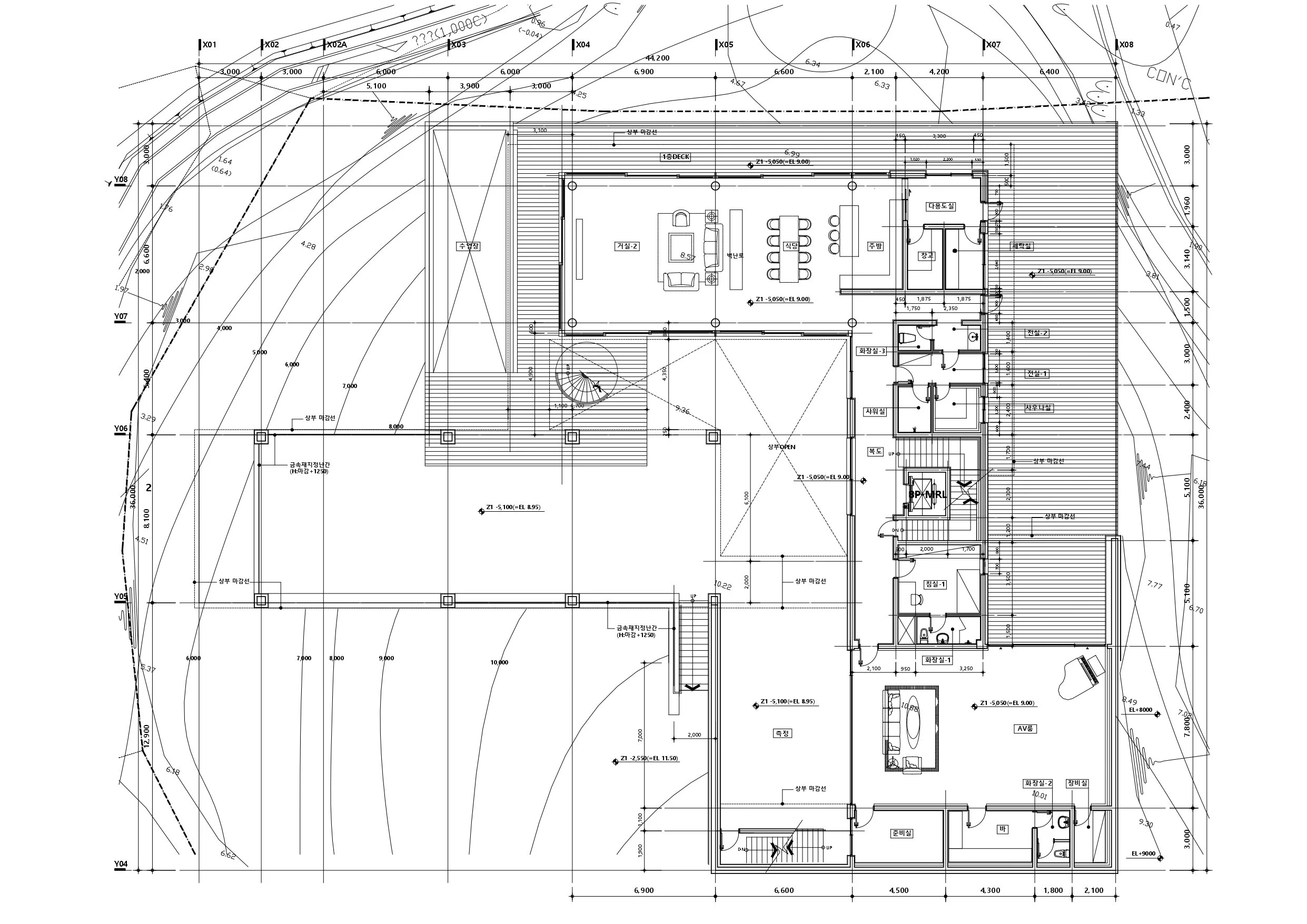
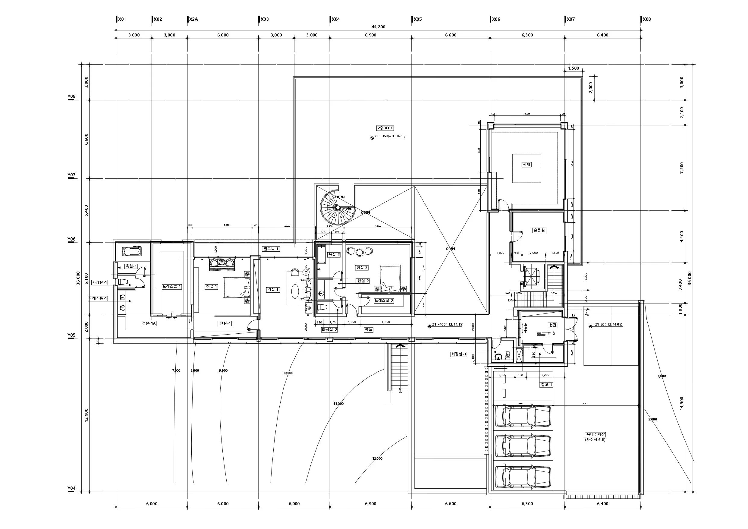
The Geseong House
Korea, Gangwon, Geseong
2020
Set within a scenic seaside landscape, the building is carefully positioned to secure expansive views from all directions.
Located in a scenic seaside setting, the building is positioned to secure expansive views from all directions. Large openings and transparent façades frame the surrounding forest and ocean, allowing the landscape to become an active part of everyday life. The structure is composed of divided mass forms, reducing visual scale while enabling each volume to respond differently to orientation, function, and view.
Circulation is organized as a sequence of interconnected spaces, where a courtyard-like core connects movement throughout the building. Together, these strategies form a contemporary interpretation of architecture rooted in harmony between people, space, and nature.